The Anchor Point
Study:
MSc Architecture
Students:
Jonathan A. Larsen
The Anchor Point
The Anchor Point
Study:
MSc Architecture
Students:
Jonathan A. Larsen
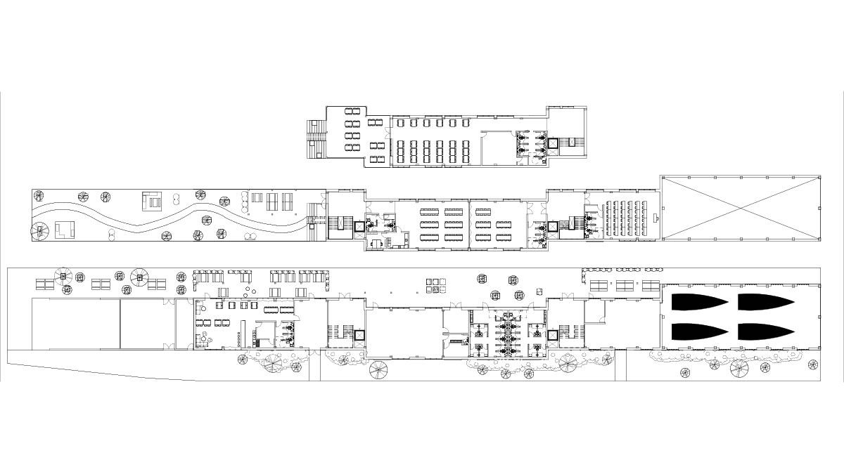
The project involves proposing a new anchor point at Aarhus Ø, focusing on creating a space for both existing and new associations to gather, along with establishing a communal area for residents and visitors. The report chronicles the journey from initial ideas to the design proposal, explaining the rationale behind the decisions and the processes involved.
It explores how the building's design impacts its users and surroundings, delving into the history of Aarhus Harbor and Aarhus Ø, and identifying current and future needs as perceived by residents and users. Site investigations aim to understand local deficiencies and microclimatic conditions. Case studies of Lanternen in Esbjerg, Kulturværftet in Helsingør, and Havnehuset in Nordhavnen inform the proposal due to their harbor locations and hybrid functions.
The resulting design, "The Anchor Point," serves as a gathering space with facilities like a shop, bar, and restaurant. The ground floor features amenities for sailing club members, while the upper floors include association spaces, classrooms, and a harbor-view restaurant connected by "Ø Parken," a green staircase linking the levels.
Dansk
Projektet omfatter et designforslag til et nyt ankerpunkt på Aarhus Ø med fokus på at skabe et rum, hvor både eksisterende og nye foreninger kan mødes, samt etablere et fællesområde for beboere og besøgende. Rapporten beskriver rejsen fra de indledende ideer til designforslaget og forklarer baggrunden for beslutningerne og de involverede processer.
Den undersøger, hvordan bygningens design påvirker brugerne og omgivelserne, og dykker ned i historien om Aarhus Havn og Aarhus Ø samt identificerer nuværende og fremtidige behov som opfattet af beboere og brugere. Undersøgelser på stedet sigter mod at forstå lokale mangler og mikroklimatiske forhold. Casestudier af Lanternen i Esbjerg, Kulturværftet i Helsingør og Havnehuset i Nordhavnen informerer om forslaget på grund af deres havnelokationer og hybride funktioner.
Det resulterende design, "The Anchor Point," fungerer som et samlingspunkt med faciliteter som butik, bar og restaurant. Stueetagen indeholder faciliteter til sejlklubbens medlemmer, mens de øvre etager inkluderer foreningslokaler, klasseværelser og en restaurant med udsigt over havnen, forbundet af "Ø Parken," en grøn trappe, der forbinder niveauerne.





