Væksthuset
Study:
MSc Architecture
Students:
Signe Stefansson Hiis and Marie Simmelkjær Johannsen
Væksthuset
Væksthuset
Study:
MSc Architecture
Students:
Signe Stefansson Hiis and Marie Simmelkjær Johannsen
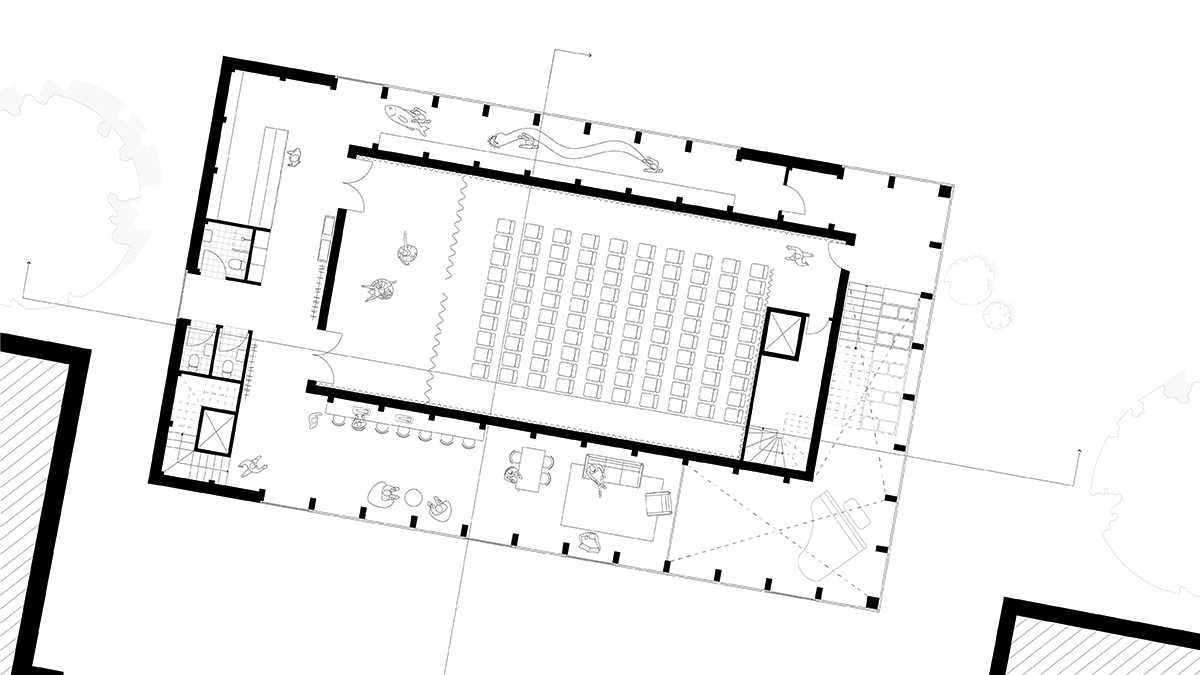
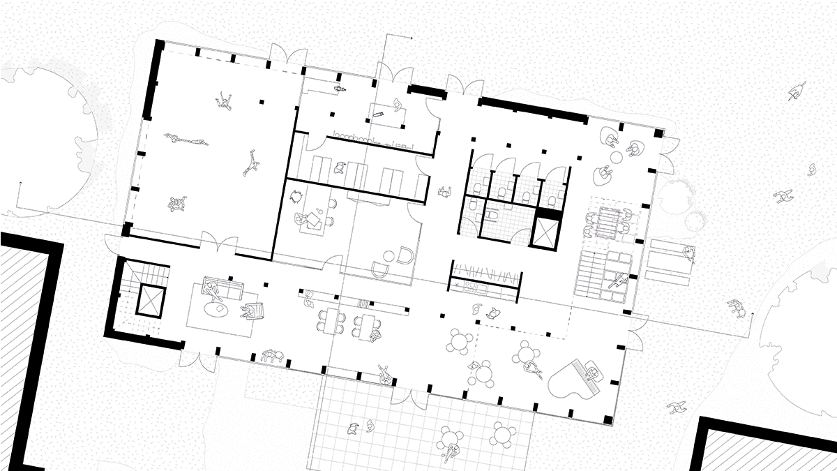
This thesis explores architecture's role in creating a meaningful meeting place that harmonizes with its historical, cultural, and physical surroundings. It focuses on enhancing Hasserisgade 10 as a people's house, open and inviting, fostering collaboration among growth-layer institutions. The vision is to complement existing structures on Hasserisgade with Væksthuset—a hub for meetings, inspiration, and cultural engagement. The architectural approach emphasizes transparency and contrast, integrating into the context while establishing a unique identity. Væksthuset accommodates Det Hem’lige Teater and serves as a meeting place for all site institutions, fostering a combined cultural space. By aligning with future city developments, the building aims to become a dynamic cultural center for music, visual arts, and performance. It symbolizes growth and community visibility in North Jutland, respectfully interacting with existing buildings rather than competing with them, thereby integrating and distinguishing itself within the urban fabric.
Dansk
Denne afhandling udforsker, hvordan arkitektur kan fungere som et middel til at skabe et meningsfuldt mødested, der integrerer sig i historiske, kulturelle og fysiske omgivelser. Fokus er på at forbedre bygningerne på Hasserisgade 10 som et folkehjem, der er åbent og indbydende, og som fremmer samarbejde mellem vækstlagsinstitutioner. Visionen er at skabe en bygning, der supplerer de eksisterende strukturer på Hasserisgade, og som danner Væksthuset - et sted hvor mennesker mødes, bliver inspireret og engagerer sig i kultur og kunst.
Den arkitektoniske tilgang vægter gennemsigtighed og kontrast, hvilket integrerer sig i konteksten samtidig med at det etablerer en unik identitet. Væksthuset rummer Det Hem'lige Teater og fungerer som et mødested for alle institutioner på stedet, og det skaber dermed et fælles kulturhus. Ved at åbne sig mod fremtidige byudviklinger sigter bygningen mod at blive et dynamisk kulturcenter for musik, billedkunst og performancekunst. Den symboliserer vækst og synlighed for fællesskabet i Nordjylland, og den interagerer respektfuldt med de eksisterende bygninger uden at konkurrere med dem, hvilket muliggør en integration og samtidig en markant positionering i bymiljøet.








