Zostera Marina: Reusing History for a Sustainable Future
Study:
MSc Architecture
Students:
Anne-Mette Rosenkilde Hansen
Zostera Marina: Reusing History for a Sustainable Future
Zostera Marina: Reusing History for a Sustainable Future
Study:
MSc Architecture
Students:
Anne-Mette Rosenkilde Hansen
As climate change becomes more evident, action is necessary, particularly in the building industry, a major contributor to global energy consumption and CO2 emissions. This thesis investigates eelgrass as a biobased building material, examining its advantages and disadvantages through historical and current uses, material properties, and comparisons with similar products.
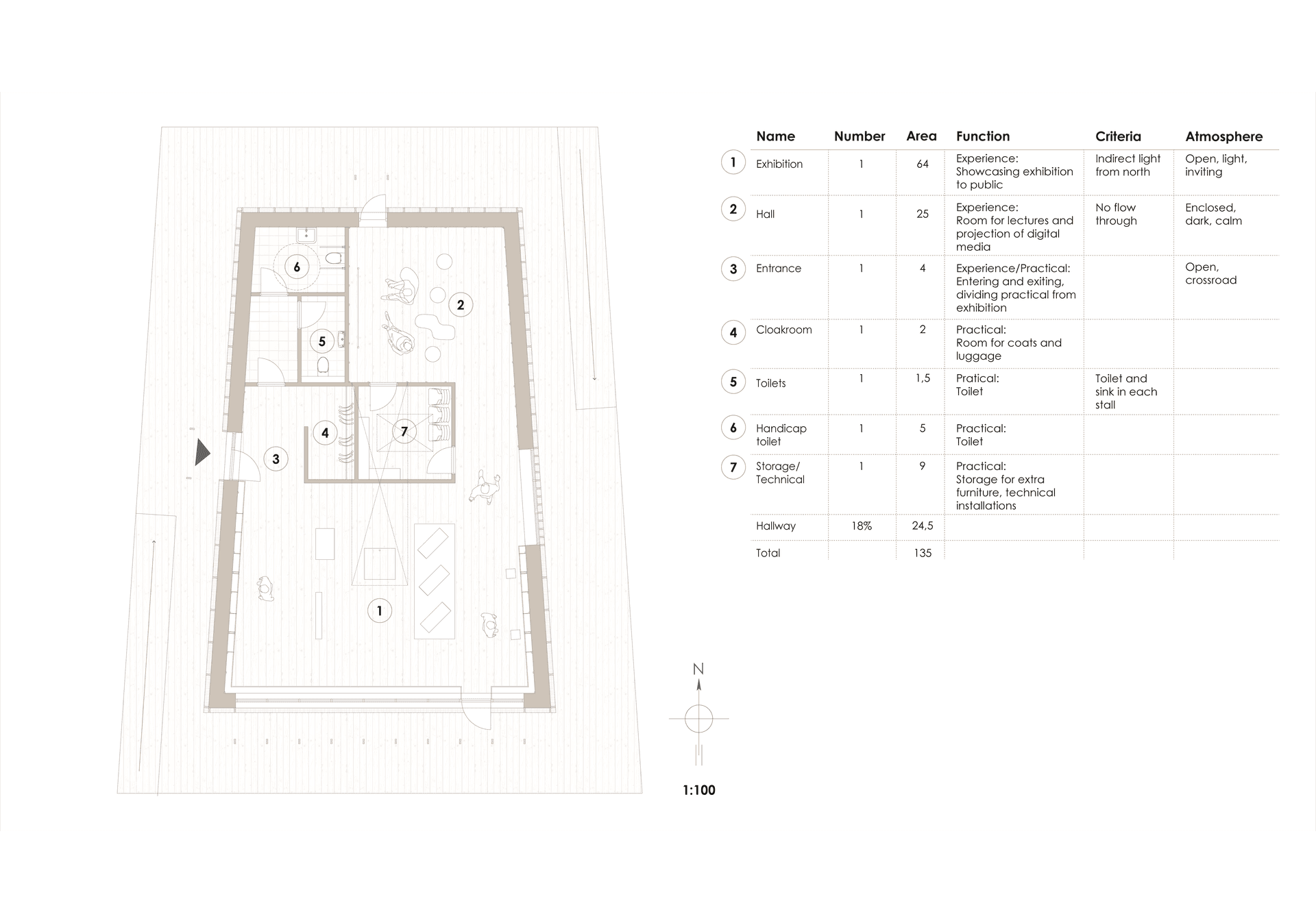
The thesis showcases eelgrass applications in both renovations and new constructions, including a small exhibition building designed to raise awareness of eelgrass. Findings reveal that eelgrass has properties comparable to, or better than, existing biobased and mineral materials, excelling in thermal and acoustic insulation with a low Global Warming Potential.
The primary challenge in scaling up eelgrass use in construction is resource scarcity, partly due to oxygen depletion in Danish waters. However, eelgrass demonstrates significant potential as an eco-friendly building material, performing well against conventional options.
DANSK
Da klimaforandringer bliver stadig mere tydelige, er det nødvendigt at handle, især i byggebranchen, som er en stor bidragsyder til globalt energiforbrug og CO2-udledning. Denne afhandling undersøger ålegræs som et biobaseret byggemateriale og gennemgår dets fordele og ulemper gennem historisk og nuværende brug, materialets egenskaber og sammenligninger med lignende produkter.
Afhandlingen viser anvendelser af ålegræs i både renoveringer og nybyggeri, herunder en lille udstillingsbygning designet til at øge bevidstheden om ålegræs. Resultaterne viser, at ålegræs har egenskaber, der kan måle sig med eller overgå eksisterende biobaserede og mineralske materialer, især inden for termisk og akustisk isolering og med lavt globalt opvarmningspotentiale.
Den største udfordring ved at skalere brugen af ålegræs i byggeriet er ressourceknaphed, delvist på grund af iltsvind i danske farvande. Alligevel viser ålegræs et betydeligt potentiale som et miljøvenligt byggemateriale, der klarer sig godt i forhold til konventionelle muligheder.








